pif’

projet réalisé _ 2023

Le bistro à vin Pif' s'installe dans les locaux d'un ancien restaurant. Le projet consiste à remanier cet espace en un lieu de rencontre convivial et s'efforce de créer une atmosphère chaleureuse en adéquation avec le produit.

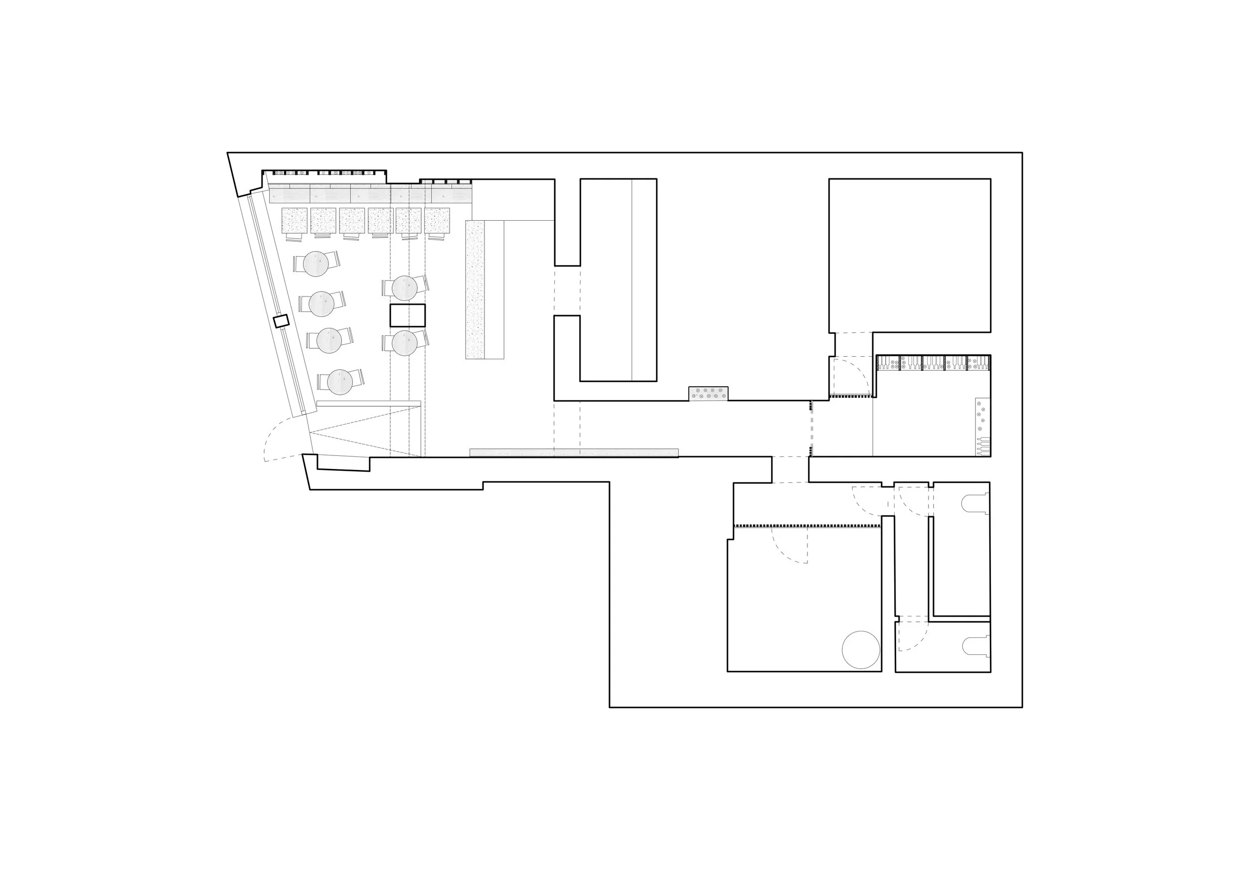
L'espace de service fait face aux grandes ouvertures, il bénéficie de lumière naturelle ainsi que d'un lien direct avec la rue et la terrasse.

Cet espace généreux est structuré en trois zones. Des places assises sont disposées le long des ouvertures, l'espace bar fait face à l'entrée, alors qu'un meuble banquette et présentoir à bouteilles vient faire le lien entre ces espaces.

La partie arrière du local est plus contraignante avec un couloir desservant des surfaces de stockage en enfilades ainsi que les sanitaires. Ces espaces sont clarifiés et redéfinis. L'ancien espace de stockage est mis en valeur et aménagé en cave. Cet espace résiduel du passé devient un phare lointain attirant le regard depuis l'entrée du bistro.

Tout dans ce projet évoque subtilement le monde viticole.

Le liège, dont sont faits les bouchons, vient habiller le présentoir à bouteilles. L'ensemble des menuiseries intérieures est réalisé en sapin, ce matériau simple dont sont faites les caisses de vins. Les teintes choisies rappellent le verre des bouteilles, alors que le terrazzo, matériau minéral, avec ses éclats ocres exprime la terre.

Précédent
Précédent

vidy

Suivant
Suivant

arnold-reymond